254-267-0617         127 Lake Road | Suite 204 | Belton, TX 76513

Save
Ask
Tour
Hide
Share
$444,280
11 Days On Site

1122 Stone Valley Road
Temple, TX 76502

For Sale|Duplex|Active
0
Beds
0
Total Baths
2,738
SqFt
$162
/SqFt
2025
Built
Subdivision:
Lake Point Terrace
County:
Bell
Call Now: 254-267-0617
Is this the listing for you? We can help make it yours.
254-267-0617
1122 Stone Valley Road
Save
Ask
Tour
Hide
Share

Mortgage Calculator

Monthly Payment (Est.)

$2,027
Calculator powered by Showcase IDX, a Constellation1 Company. Copyright ©2026 Information is deemed reliable but not guaranteed.

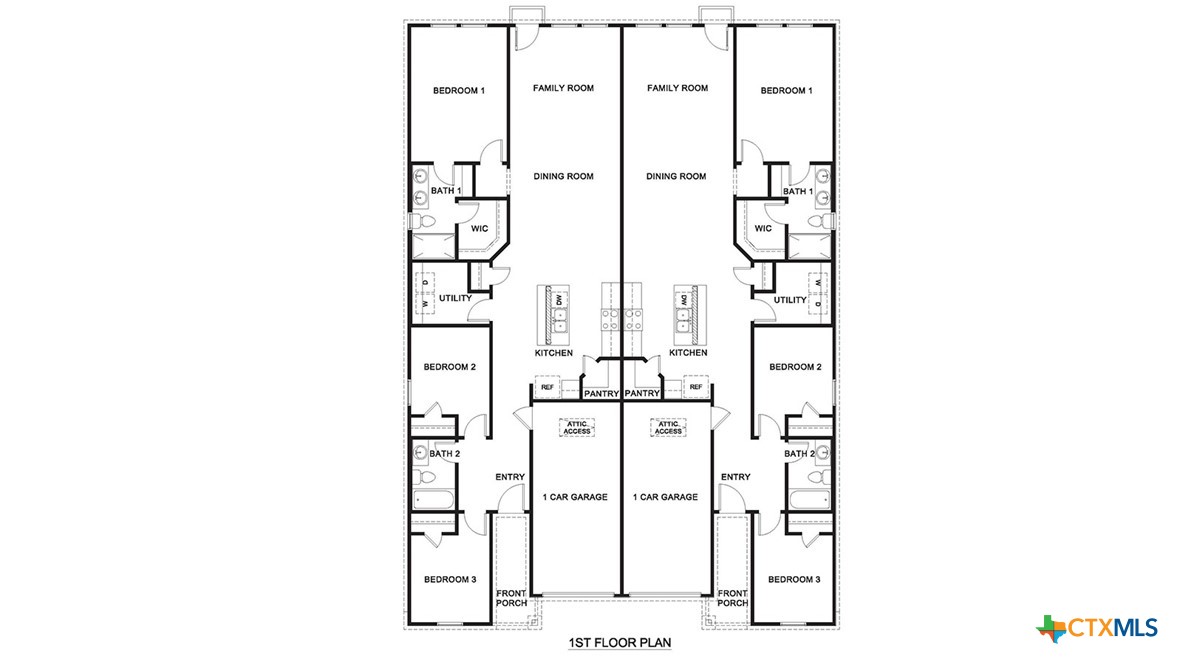
The 1402 Multi-Family Duplex floorplan at The Terrace Duplexes in Temple, Texas is a 3-bedroom, 2-bathroom single-story home covering approximately 1,369 sq. ft. The single-car garage ensures plenty of space for your vehicle and storage. In this floorplan, you’ll find a home that makes the most of its space. The kitchen features beautiful flat panel birch cabinetry with granite countertops and its corner pantry, as it flows into the dining area and family room. The bedrooms are carpeted, and the primary bedroom has an attached bathroom with a walk-in closet. The secondary bedrooms are cozy and carpeted, with plenty of closet space. The laundry room is perfectly place in the center of the house between the primary and secondary bedrooms for easy access. Enjoy nature from the backyard covered patio that is accessible from the family room. Here you can start or end your day relaxing with nature. Like with all our homes, you’ll never be too far from home with our smart home technology thoughtfully designed into every detail. Find security and control through the Qolsys panel, your phone, or voice and when you want to add additional smart home tech, easily integrate with Z-wave or Bluetooth technology. Come visit the Multi-Family Duplex floorplan today to find your new home!

Save
Ask
Tour
Hide
Share
Listing Snapshot
Price 
$444,280
Days On Site 
11 Days
Bedrooms 
N/A
Inside Area (SqFt) 
2,738 sqft
Total Baths 
N/A
Full Baths 
N/A
Partial Baths 
N/A
Lot Size 
0.2 Acres
Year Built 
2025
MLS® Number 
605318
Status 
Active
Property Tax 
N/A
HOA/Condo/Coop Fees 
$30 monthly
Sq Ft Source 
Builder
Friends & Family
Recent Activity
14 hours agoPrice changed to $444,280
14 hours agoListing updated with changes from the MLS®
2 weeks agoListing first seen on site
General Features
Acres 
0.2
Attached Garage 
Yes
Foundation 
Slab
Garage 
Yes
Garage Spaces 
2
Levels 
One
Property Sub Type 
Duplex
Sewer 
Public Sewer
Style 
OtherSeeRemarks
Utilities 
OtherSee Remarks
Water Source 
Public
Interior Features
Appliances 
DishwasherElectric RangeElectric Water HeaterDisposalMicrowaveOvenWater Heater
Cooling 
Ceiling Fan(s)Central Air
Fireplace Features 
None
Flooring 
CarpetVinyl
Heating 
Central
Interior 
Ceiling Fan(s)Entrance FoyerRecessed LightingSee RemarksSmart HomeSmart ThermostatWalk-In Closet(s)Pantry
Laundry Features 
Laundry Room
Save
Ask
Tour
Hide
Share
Exterior Features
Construction Details 
BrickHardiPlank Type
Fencing 
Back YardFencedPrivacyWood
Road Frontage 
City Street
Roof 
ShingleWood
Spa Features 
None
View 
None
Waterfront Features 
None
Waterview 
None
Community Features
Association Dues 
90
Community Features 
OtherCurbsStreet LightsSidewalks
Financing Terms Available 
CashConventionalFHAVA Loan
HOA Fee Frequency 
Quarterly
Roads 
AsphaltGravelPaved
School District 
Belton ISD
Schools
School District
Belton ISD
Elementary School
Tarver Elementary
Middle School
North Belton Middle School
High School
Lake Belton High School
Listing courtesy of Eleonora Santana of Nexthome Tropicana Realty



Listing information is provided by Participants of the Central Texas MLS. IDX information is provided exclusively for personal, non-commercial use, and may not be used for any purpose other than to identify prospective properties consumers may be interested in purchasing. Information is deemed reliable but not guaranteed. Copyright 2026, Central Texas MLS.
Last checked: 2026-03-07 06:09 AM UTC

Neighborhood & Commute
Source: Walkscore
Disclosure: Community information and market data powered by Constellation Data Labs. Information is deemed reliable but not guaranteed.
Save
Ask
Tour
Hide
Share